top of page
Jim Bransford
Architect
HOME
FIRM
WORK
CONTACT
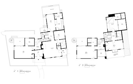
JKM RESIDENCE
South Hamilton, Massachusetts
Sroll Down
BACK TO RESIDENTIAL
bottom of page